Maisonettewohnung im beliebtem Trautheim
Objekt-Nr:8365
Nutzungsart:Wohnen
Objektart:Wohnung
Objekttyp:Erdgeschoss
Vermarktungsart:Mietobjekt
Warmmiete:1.300,00 €
Heizkosten in Warmmiete enthalten:Ja
Nebenkosten:350,00 €
Kaltmiete:950,00 €
Nutzfläche:7,50 m²
Zimmer:3
Separate WCs:1
Balkone:1
Vermietbare Fläche:105,00 m²
Wohnfläche:105,00 m²
Schlafzimmer:2
Badezimmer:1
Zustand:gepflegt
Baujahr:1994
Kabel/Sat-TV:Ja
Heizungsart:Zentral
Immobilie ist verfügbar ab:sofort bzw. n.V.
Diese großzügige und modern geschnittene Mietwohnung erstreckt sich über das Erdgeschoss und den Souterrainbereich und bietet mit ca. 105 m² Wohnfläche sowie zusätzlich ca. 8 m² Nutzfläche ein komfortables Zuhause mit vielseitigen Nutzungsmöglichkeiten.
Der optimale Mieter ist...
...Single, Pärchen oder eine kleine Familie
...bereit auch 2 Jahre oder länger anzumieten?
...berufstätig
...Nicht-Raucher
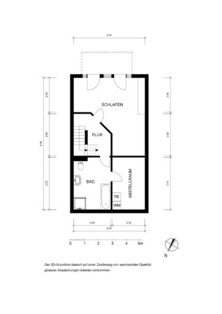
Bereits im Erdgeschoss zeigt sich die Wohnung mit einem gelungenen, durchdachten Grundriss. Neben einem flexibel nutzbaren Kinder- oder Arbeitszimmer befindet sich hier ein praktisches Gäste-WC.
Herzstück dieser Ebene ist der großzügige, offen gestaltete Wohn-, Ess- und Küchenbereich, der viel Raum für gemeinsames Leben und individuelle Einrichtungsideen bietet. Die Küche wird vom Mieter selbst eingebracht und kann somit ganz nach eigenen Vorstellungen gestaltet werden. Der Balkon, der nach Süd-West ausgerichtet ist, bietet die Möglichkeit entspannte Stunden im Freien zu verbringen.
Über eine innenliegende Treppe im Wohnbereich gelangt man in den Souterrainbereich der Wohnung. Hier befindet sich ein zentraler Flur, von dem aus alle Räume dieser Ebene erreichbar sind. Das großzügige Badezimmer ist mit Badewanne, Dusche, WC sowie zwei Waschbecken ausgestattet und bietet hohen Komfort. Direkt vom Badezimmer aus gelangt man in den Hauswirtschaftsraum, in dem sich die Anschlüsse für Waschmaschine und Trockner befinden und der zusätzlichen Stauraum bietet.
Ebenfalls vom Flur aus erreichbar ist das Schlafzimmer, das ausreichend Platz für ein großes Doppelbett, einen Kleiderschrank sowie einen Schreibtisch bietet. Die bodentiefen Fenster sorgen für viel Tageslicht und schaffen eine angenehme Wohnatmosphäre. Von hier aus besteht zudem ein direkter Austritt nach draußen.
Abgerundet wird dieses attraktive Angebot durch einen Außenstellplatz im Hof, der komfortables Parken ermöglicht. Diese Wohnung eignet sich ideal für Paare oder kleine Familien, die großzügiges Wohnen mit einer besonderen Raumaufteilung zu schätzen wissen.
Die Wohnung wird frisch renoviert übergeben.
Die Miete von 1.300 € setzt sich aus 950 € Kaltmiete und 350 € Nebenkostenvorauszahlung zusammen. Die Heizkosten sind in den Nebenkosten bereits enthalten und belaufen sich aktuell auf ca. 150 € im Monat.
Direkte Natur und trotzdem alle nötigen Läden des täglichen Bedarfs in direkter Umgebung. So lässt sich die Lager der Immobilie am besten beschreiben.
Der Ortsteil Trautheim zählt in Mühltal zu den beliebtesten. Durch das ausgeprägte Vereinsleben ist es egal, ob jung oder alt, hier finden alle die Möglichkeit einem Hobby oder einer Leidenschaft nachzugehen. Der angrenzende Ort Traisa bietet einen Fußball-, Reit-, Tennisverein. Zudem gibt es die Möglichkeit, auf dem wunderschön gelegenen 9-Loch-Golfplatz sein Handicap zu verbessern.
Dank der verschiedenen Einkaufsmöglichkeiten, wie z. B. ein Rewe, Aldi, Lidl etc. die mit dem Fahrrad 4 Minuten entfernt sind, müssen Sie keine weiten Wege auf sich nehmen. Die Apotheke sowie Ärzte bieten medizinische Versorgung im Ort.
Auch für die Bildung der Kinder ist gesorgt. Es gibt verschiedene Kitas (unter anderem eine Naturkita) sowie eine Grundschule im Nachbarort.
Mit den verschiedenen Bussen kommen Sie nach Darmstadt. Zu den Haltestellen laufen Sie ca. 7 min. hin.
Haben wir Ihr Interesse geweckt? Dann füllen Sie einfach das nebenstehende Kontaktformular aus und schreiben Sie uns, wann Sie einen Besichtigungstermin wünschen. Sollten Sie zuvor noch Fragen haben, sind wir selbstverständlich für Sie erreichbar (Mo.-Fr. 10:00 bis 18:00 und Sa. von 10:00 bis 16:00).
Der Maklervertrag mit uns kommt entweder durch schriftliche Vereinbarung oder auch durch die Inanspruchnahme unserer Maklertätigkeit auf der Basis des Objekt-Exposés und seiner Bedingungen zustande. Sollte das von uns nachgewiesene Objekt bereits bekannt sein, teilen Sie uns dieses bitte unverzüglich mit.
Die Courtage in Höhe von 2,38 Nettokaltmieten inkl. 19 % ist bei Abschluss des Mietvertrags fällig und wird vom Vermieter an Schwind Immobilien gezahlt.
Alle Angaben sind ohne Gewähr und basieren ausschließlich auf Informationen, die uns von unserem Auftraggeber, Hausverwalter oder Vormieter übermittelt wurden. Wir übernehmen keine Gewähr für die Vollständigkeit, Richtigkeit und Aktualität dieser Angaben. Irrtum und Zwischenvermietung vorbehalten. Es handelt sich lediglich um Beschreibung und nicht um zugesicherte Eigenschaften. Die Weitergabe an Dritte verpflichtet zur vollen Provisionszahlung.
Mit der Immobilienanfrage erklären sich Interessenten einverstanden, dass das Immobilienunternehmen Schwind Immobilien wegen Objektangeboten telefonisch, schriftlich oder per E-Mail Kontakt aufnimmt.
Sie haben Interesse an diesem Objekt?
Senden Sie uns gleich eine Anfrage, damit wir mit Ihnen einen Besichtigungstermin vereinbaren können.
Wir freuen uns sehr auf Ihre Nachricht.
