Exklusiv wohnen in historischer Mühle - Voll möblierte, befristete Vermietung
Objekt-Nr:8425
Nutzungsart:Wohnen
Objektart:Wohnung
Objekttyp:Maisonette
Vermarktungsart:Mietobjekt
Warmmiete:2.600,00 €
Kaution:2 Kaltmieten
Nebenkosten:600,00 €
Kaltmiete:2.000,00 €
Nutzfläche:14,00 m²
Zimmer:6
Wohnfläche:154,00 m²
Schlafzimmer:3
Badezimmer:2
Zustand:Teil- oder Vollrenoviert
Baujahr:1707
Gartennutzung:Ja
Heizungsart:Fussboden
Immobilie ist verfügbar ab:ab sofort bzw n.V.
Abseits vom Gewöhnlichen eröffnet sich ein Wohnort für Menschen, die Ruhe, Qualität und Charakter schätzen. Das historische Ensemble der Engelsmühle ist geprägt von einer besonderen Gelassenheit, die man selten findet. Hier verbindet sich die Kraft eines geschichtsträchtigen Ortes mit der Selbstverständlichkeit modernen Wohnens.
Die Engelsmühle, erstmals 1707 errichtet, beherbergt heute lediglich neun Wohneinheiten in drei stilvoll angeordneten Gebäuden rund um einen geschützten Innenhof. In diesem besonderen Ambiente steht nun eine der außergewöhnlichen Wohnungen zur befristeten, voll möblierten Vermietung bereit.
HIGHLIGHTS IM ÜBERBLICK:
+ vollständig und hochwertig möbliert
+ historisches Ambiente mit moderner Ausstattung
+ Kaminofen für besondere Wohnatmosphäre
+ dreifach verglaste Panoramafenster & offener Giebel
+ zwei moderne Tageslichtbäder
+ überdachte Terrasse mit elektrischer Beschattung
+ eigener Gartenanteil mit Gartenhaus
+ renovierter, hochwertiger Zustand
+ Gira-Videosprechanlage & moderne Lichttechnik
+ Carport- und Stellplatzmöglichkeiten
+ abgeschlossener Kellerraum sowie Waschbereich
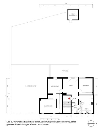
AUFTEILUNG UND SCHNITT:
Die großzügige 6-Zimmer-Maisonettewohnung erstreckt sich über ca. 154 m² Wohnfläche vom Obergeschoss bis in den Spitzboden. Hohe Decken, offene Giebelstrukturen und große Fensterflächen schaffen ein lichtdurchflutetes Wohngefühl, das Historie und zeitgemäßen Komfort harmonisch verbindet.
Die Wohnung wird hochwertig und vollständig möbliert vermietet – geschmackvoll, durchdacht und bezugsfertig. Ideal für Menschen, die auf Zeit außergewöhnlich wohnen möchten, ohne auf Qualität und Atmosphäre zu verzichten.
Herzstück der unteren Wohnebene ist der großzügige Essbereich mit direktem Zugang zur überdachten Terrasse. Elektrische Verschattung, Glasüberdachung und ein eingewachsener Außenbereich bieten geschützte Stunden im Freien. Der angrenzende Garten mit Gartenhäuschen fügt sich idyllisch an den Hang und lädt zum Verweilen ein.
Die hochwertige Einbauküche ist vollständig ausgestattet, inklusive Gasherd, und fügt sich funktional wie optisch in das Gesamtbild ein. Drei gut geschnittene Schlafräume, teils mit Einbauten und Ankleidebereich, sowie zwei moderne Tageslichtbäder unterstreichen den Wohnkomfort.
Über eine elegante Holztreppe gelangt man in den beeindruckenden Wohnbereich im Dachgeschoss: Eine große Panoramaglasfront bis in den Giebel, ein gemütlicher Kaminofen und eine charmante Sitzfensterbank schaffen einen Raum mit besonderer Atmosphäre – ideal zum Entspannen, Lesen oder Ankommen.
Der offen gestaltete Spitzboden, aktuell als Arbeitsbereich genutzt, rundet das Raumangebot ab und bietet einen inspirierenden Rückzugsort mit Blick in den Wohnraum.
ZAHLEN UND FAKTEN:
Die Miete für diese voll möblierte, temporär zu vermietende Maisonettewohnung beläuft sich auf 2600,- pauschal inklusive Nebenkosten, Strom, Internet und Stellplätzen. Die Mietlaufzeit beträgt zunächst 6 Monate, kann gegebenenfalls monatlich verlängert werden. Die Wohnung wird parallel zum Verkauf angeboten, regelmäßige Besichtigungen während der Mietzeit müssen daher vom Mieter ermöglicht werden.
Ein Stellplatz im Freien sowie ein Carportstellplatz gehören zum Mietumfang dazu. Weitere Stellplätze können bei Bedarf zusätzlich angemietet werden.
Diese Wohnung ist kein klassisches Mietobjekt. Sie ist ein Rückzugsort auf Zeit – für Menschen mit Sinn für Ästhetik, Geschichte und Qualität - ideal für berufliche Übergangsphasen oder temporäres Wohnen.
Gerne stelle ich Ihnen dieses außergewöhnliche Zuhause persönlich vor und informiere Sie über die Konditionen der befristeten, möblierten Vermietung.
Abgeschieden und vom Wald umgeben - leben im Einklang mit der Natur und dennoch in direkter Nähe zu Einkaufsmöglichkeiten von Eberstadt und dem Mühltal. Dieses Anwesen bietet viel Privatsphäre, Ruhe und Freiraum und liegt traumhaft umgeben von Natur vor den Türen Eberstadts.
Trotz der entspannend wirkenden Abgeschiedenheit sind Ihre alltäglichen Wege schnell zu erreichen. Dank guter Anbindung an die Bundesstraße B426 sowie die Autobahnen A5 und A67 bleiben Sie mit dem Auto äußerst flexibel. In nur 5 Minuten erreichen Sie Eberstadt, nach Darmstadt benötigen Sie lediglich 15 Minuten. Hier können Sie alle wichtigen Besorgungen im Handumdrehen erledigen.
Auch mittels Bus und der Straßenbahn können Sie problemlos in die Stadt gelangen. Die nächste Haltestelle ist gerade weniger als fünf Fußminuten entfernt. Von hier aus fahren unter anderem die Busse K50 oder NE.
Mittels der Linie 65 können Sie vom etwa 10 Minuten entfernten Bahnhof in Ober-Ramstadt den Hauptbahnhof Frankfurt ganz bequem ohne lästiges Umsteigen erreichen.
Vor allem für Kinder bietet diese Immobilie viel Platz zum Spielen und Toben. Sowohl im gemeinschaftlich genutzten Innenhof, der durch das große Eingangstor von dem Außenbereich vor Blicken Fremder schützt, als auch in dem angrenzenden Wald oder dem eigenen Garten… In den Städten Ihrer unmittelbaren Umgebung befinden sich viele Freizeitangebote für Ihre Lieblinge. Wie wäre es zum Beispiel mit einem Besuch im Mühltalbad, das Sie bequem mit dem Fahrrad in weniger als 10 Minuten erreichen.
Haben wir Ihr Interesse geweckt? Dann füllen Sie einfach das nebenstehende Kontaktformular aus und schreiben Sie uns, wann Sie einen Besichtigungstermin wünschen. Sollten Sie zuvor noch Fragen haben, sind wir selbstverständlich für Sie erreichbar (Mo.-Fr. 10:00 bis 18:00 und Sa. von 10:00 bis 16:00).
Der Maklervertrag mit uns kommt entweder durch schriftliche Vereinbarung oder auch durch die Inanspruchnahme unserer Maklertätigkeit auf der Basis des Objekt-Exposés und seiner Bedingungen zustande. Sollte das von uns nachgewiesene Objekt bereits bekannt sein, teilen Sie uns dieses bitte unverzüglich mit.
Die Courtage in Höhe von 2,38 Nettokaltmieten inkl. 19 % ist bei Abschluss des Mietvertrags fällig und wird vom Vermieter an Schwind Immobilien gezahlt.
Alle Angaben sind ohne Gewähr und basieren ausschließlich auf Informationen, die uns von unserem Auftraggeber, Hausverwalter oder Vormieter übermittelt wurden. Wir übernehmen keine Gewähr für die Vollständigkeit, Richtigkeit und Aktualität dieser Angaben. Irrtum und Zwischenvermietung vorbehalten. Es handelt sich lediglich um Beschreibung und nicht um zugesicherte Eigenschaften. Die Weitergabe an Dritte verpflichtet zur vollen Provisionszahlung.
Mit der Immobilienanfrage erklären sich Interessenten einverstanden, dass das Immobilienunternehmen Schwind Immobilien wegen Objektangeboten telefonisch, schriftlich oder per E-Mail Kontakt aufnimmt.
Sie haben Interesse an diesem Objekt?
Senden Sie uns gleich eine Anfrage, damit wir mit Ihnen einen Besichtigungstermin vereinbaren können.
Wir freuen uns sehr auf Ihre Nachricht.
